410和420型仪表着陆系统(ILS)
一、业务
“铭远航空”供应成套设备,包括备件供应,安装调试,飞行校验,板件修理,工厂培训,售后服务,技术咨询,备件支持,现场故障抢修,优化调整和周期巡检等业务。
ILS410和ILS420机柜,如下图。

二、业绩
1、“铭远航空”在中国呼和浩特机场,阿尔山机场,锡林浩特机场,嘉峪关机场,黎平机场等30多个机场,完成了ILS410设备,故障修理,周期巡检,系统优化等业务。
2、“铭远航空”在中国和田机场,常德机场,阜阳机场,惠州机场等10多个机场,完成了ILS420设备,安装调试,飞行校验,故障修理,周期巡检等业务。
三、案例
1、2021年5月,“铭远航空”在中国安徽省阜阳机场,进行了ILS420航向信标天线系统升级改造项目。
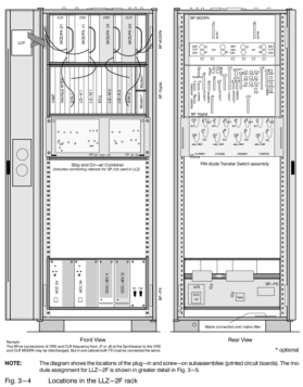
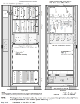
ILS420机柜,如下图。

2、ILS420航向信标天线系统,如下图。

四、模拟机平台
“铭远航空”已建立了成套ILS410和ILS420设备模拟机平台,承接模拟机改造,板件上机测试,板件修理,实操培训,备件支持,技术支持等业务。
1、航向信标LLZ411,下滑信标GP412模拟机,如下图。

2、改造后的航向信标LLZ421模拟机,如下图。

五、ILS410设备板件清单
序号 | 板件英文名称 | 板件中文名称 | 简 称 | 序号(PN) |
一、Transmitter Unit,发射机单元 | ||||
1 | Modulator Signal Generator - Control,MSG-C | 调制信号控制板 | MSG-C | 8313527200 |
2 | Modulator Signal Generator - Sign,MSG-S | 调制信号产生板 | MSG-S | 8313527100 |
3 | Modulator 110,MOD-110 | 调制功放板 | MOD-110 | 8313526101 |
4 | Modulator 110P,100W,MOD-110P | 调制功放板 | MOD-110P | 8313526200 |
5 | Synthesizer,LLZ-2F,SYN-L2 | 频率合成板 | SYN-L2 | 8313428202 |
6 | Control Coupler,LLZ-2F,CCP-L2 | 控制耦合板 | CCP-L2 | 8313429200 |
7 | RF-Duplexer LLZ,RFD-L | 航向继电器切换单元 | RFD-L | 5834100800 |
8 | Modulator 330,MOD-330 | 调制功放板 | MOD-330 | 8313426300 |
9 | Modulator 330P,MOD-330P | 调制功放板 | MOD-330P | 8313426400 |
10 | Synthesizer GP-2F,SYN-G2 | 下滑合成板 | SYN-G2 | 8313428502 |
11 | Control Coupler GP-2F, CCP-G2 | 下滑控制耦合板 | CCP-G2 | 8313429500 |
12 | RF-Duplexer 1-GP,RFD1-G | 下滑单频射频切换单元 | RFD1-G | 5834100840 |
13 | RF-Duplexer 2 GP,RFD2-G | 下滑双频射频切换单元 | RFD2-G | 5834100810 |
二、Monitor Unit,监控器单元 | ||||
1 | Monitor Signal Processor LLZ, MSP-L | 航向监控板 | MSP-L2 | 8313422101 |
2 | Monitor Divider Switch LLZ-2F, MDS-L23 | 航向监控分配开关板 | MDS-L23 | 8313420101 |
3 | Monitor Interface Adapter ,MIA-L | 航向监控接口分配板 | MIA-L | 8313423600 |
4 | Monitor Signal Processor GP, MSP-G | 下滑监控板 | MSP-G2 | 8313422201 |
5 | Monitor Divider Switch GP-2F, MDS-G23 | 下滑监控分配开关 | MDS-G23 | 8313420300 |
6 | Monitor Interface Adapter ,MIA-G | 下滑监控接口分配板 | MIA-G | 8313423700 |
三、Controller Unit,控制单元 | ||||
1 | Control & Selector Logic,CSL | 控制选择逻辑板 | CSL | 8313523100 |
2 | Local Control Status Unit LCSU, MP386 | 本地控制板 | LCSU | 488700001 |
四、Remote Controller Unit,遥控器单元 | ||||
1 | Remote Monitoring Unit,RCSI 447-8 | 8路远程监控单元 (遥控器) | RCSI 447-8 | 472238-0302 |
2 | Tower Repeater Unit,SI 447-8 | 8路塔台重显单元 | SI 447-8 | 002238-0700 |
3 | Local Control Status Unit, LCSU MP386 | 本地控制板 | LCSU | 488700001 |
4 | Indication/Commands-8 Module | 状态显示板 | INC | 474930065H |
5 | Power Module | 电源模块 | PK30 | 136-010992J |
6 | Party Line Modem LGM 1200 | 接口模块(Modem) | LGM 1200 | 488700013N |
7 | Party Line Modem LGM 28.8 | 接口模块(Modem) | LGM 28.8 | / |
五、Power Supply Unit,电源单元 | ||||
1 | AC/DC-Converter 700W module | 交流直流电源稳压模块 | ACC-54 | 5834120102 |
2 | DC-Supply Multivolt | 航向多路直流稳压模块 | DCC-MV | 8313412300 |
3 | DC-Supply Multivolt | 下滑多路直流稳压模块 | DCC-MV | 8313812400 |
4 | DC-Converter,5V | 5V直流稳压模块 | DCC-5C | 8313412100 |
5 | Power Management PMM (LLZ) | 航向电源管理单元 | PMM-LLZ | 8313430501 |
6 | Power Management PMM(GP) | 下滑电源管理单元 | PMM-GP | 8313430601 |
六、Antenna Unit,天线单元 | ||||
1 | LLZ Antenna Element | 航向天线振子 | LLZ-ANT | 448112-0001 |
2 | GP Antenna Element | 下滑天线振子 | GP-ANT | 448116-0001 |
3 | LLZ Near-F Monitor Antenna | 航向近场监控天线 | LLZ-NF-ANT | 9038473 |
4 | GP Near-F Monitor Antenna | 下滑近场监控天线 | GP-NF-ANT | 9038477 |
六、ILS420设备板件清单
序号 | 板件英文名称 | 板件中文名称 | 简 称 | 序号(PN) |
一、Transmitter Unit,发射机单元 | ||||
1 | LLZ/GP Audio Generator | 音频信号产生板 | LG−A | 120570−0004 |
2 | Synthesizer | 合成板 | SYN | 120496−0004 |
3 | Modulator Power Amplifier LLZ | 航向功放板 | MOD-PA | 120588-0002 |
4 | PIN−diode Transfer Switch | 射频继电器转换单元 | RFD-L/G | 120622−0001 |
5 | Modulator Power Amplifier GP | 下滑航道功放板 | MOD-PA | 120589−0001 |
6 | Modulator Power Amplifier GP | 下滑余隙功放板 | MOD-PA | 120589−0002 |
7 | Transmitter motherboard | 发射机母板 | TX-MOB | 120602-0001 |
8 | Monitor motherboard | 监控器母板 | MON-MOB | 120598-0002 |
二、Monitor Unit,监控器单元 | ||||
1 | LLZ/GP Monitor Processor | 监控器处理板 | LG−M | 120570−0004 |
2 | Monitor Interface | 接口板 | INTFC | 120628−0001 |
3 | Stby and On−Air Combiner | 主备机射频信号混合板(旧版本) | SOAC | 120621−0001 |
4 | Stby and On−Air Combiner | 主备机射频信号混合板(新版本) | SOAC | 120769-0001 |
三、Controller Unit,控制单元 | ||||
1 | Executive Control Unit | 执行控制板 | ECU | 120571−0004 |
2 | Local Control Panel | 本地控制板 | LCP | 83135 21006 |
四、Remote Controller Unit,遥控器单元 | ||||
1 | Remote Monitoring Unit,RCSI 447-8 | 8路远程监控单元 (遥控器) | RCSI 447-8 | 472238-0302 |
2 | Tower Repeater Unit,SI 447-8 | 8路塔台重显单元 | SI 447-8 | 002238-0700 |
3 | Local Control Status Unit, LCSU MP386 | 本地控制板 | LCSU | 488700001 |
4 | Indication/Commands-8 Module | 状态显示板 | INC | 474930065H |
5 | Power Module | 电源模块 | PK30 | 136-010992J |
6 | Party Line Modem LGM 1200 | 接口模块(Modem) | LGM 1200 | 488700013N |
7 | Party Line Modem LGM 28.8 | 接口模块(Modem) | LGM 28.8 | / |
五、Power Supply Unit,电源单元 | ||||
1 | AC/DC-Converter 700W module | 交流直流电源稳压模块 | ACC-54 | 5834120102 |
2 | Low Voltage Sensor | 低电压转换板 | LVS | 83138 30511 |
3 | DC−Converter 5V (on LVS board) | 5V直流稳压模块 | DCC-5 | / |
4 | DC−Converter Multivolt | 多路直流稳压模块 | DCC−MV | 83138 12400 |
六、Antenna Unit,天线单元 | ||||
1 | LLZ 14-Distribution Network | 航向14单元射频分配单元 | ADU | 120354-0003 |
2 | LLZ 14-Monitor Assy | 航向14单元监控混合单元 | MCU | 120631-0001 |
3 | Power Adder (GP−2F active) | 下滑功率分配单元 | PAD−A | 120634−0001 |
4 | Power Adder (GP−2F standard) | 下滑功率分配单元 | PAD−S | 120609−0001 |
5 | GP Phase Shifter | 下滑移相器 | Z1,Z3 | 120623−0001 |
6 | LLZ Antenna Element | 航向天线振子 | LLZ-ANT | 448112-0001 |
7 | GP Antenna Element | 下滑天线振子 | GP-ANT | 448116-0001 |
8 | LLZ Near-F Monitor Antenna | 航向近场监控天线 | LLZ-NF-ANT | 9038473 |
9 | GP Near-F Monitor Antenna | 下滑近场监控天线 | GP-NF-ANT | 9038477 |
七、ILS410设备机柜板件分布图
LLZ411型航向信标机柜 | GP412型下滑信标机柜 |
| ![]() |
八、ILS420设备机柜板件分布图
LLZ421型航向信标机柜 | GP422型下滑信标机柜 |
| ![]() |
上一篇:没有了!