1150A Doppler Very High Frequency Omnidirectional Range (DVOR)
一、Business
“Bright Aviation” supplies complete sets of equipment, including spare parts supply, installation and commissioning, flight check, panel repair, factory training, after-sales service, technical consultation, spare parts support, on-site fault repair,periodic inspection and other businesses.
DVOR1150A antenna system,as shown in the figure.

二、Performance
“Bright Aviation” has completed DVOR1150A, DME1118A, DME1119A equipment fault repair, periodic patrol inspection, system optimization, installation and commissioning, flight check, on-site training and other businesses in more than 10 airports in China, including Tumushuke Airport, Cangyuan Airport, Lancang Airport, Tongshan Navigation Station, etc.
三、Case
In August 2019, “Bright Aviation” installed and commissioned DVOR1150A,DME1119A equipment at Tongshan Navigation Station, Jiangsu Province, China, as shown in the figure.

四、Simulator platform
1.“Bright Aviation” has established a complete set of DVOR1150A equipment simulator platform to undertake simulator modification, plate on-board testing, plate repair, practical training, spare parts support and technical support.
2. DVOR1150A simulator platform,as shown in the figure.

五、Board List
No. | Board English Name | Board Chinese Name | Abbreviation | Serial Number |
一、Transmitter Unit,发射机单元 | ||||
1 | Audio Generator CCA | 音频信号产生板 | AGU | 012254-1001 |
2 | Synthesizer Assembly | 射频合成板 | SYN | 030838-1001 |
3 | Sideband Amplifier ASSY | 边带功放板 | SPA | 030824-0002 |
4 | Carrier Amplifier ASSY | 载波功放板 | CPA | 030825-0003 |
5 | Test Generator CCA | 测试信号产生板 | TGA | 012223-1001 |
6 | Carrier Rack | 载波母板 | / | / |
7 | Sideband Rack | 边带母板 | / | / |
8 | Divider,Power-RF | 射频功率分配器 | / | 950310-0001 |
9 | Switch,RF-Xmsn Line | 射频切换继电器 | / | 950337-0000 |
二、Monitor Unit,监控器单元 | ||||
1 | Monitor CCA | 监控板 | MON | 012245-1001 |
2 | RF Monitor ASSY | 射频监控板 | RFM | 030829-0001 |
三、Controller Unit,控制单元 | ||||
1 | Local Control Unit | 本地控制板 | LCU | 030801-0002 |
2 | RMS CCA | 远程维护板 | RMS | 012172-1002 |
3 | Facilities CCA | 辅助功能板 | FAC | 012171-0002 |
4 | Interface CCA | 接口板 | INT | 012167-0001 |
5 | Control Rack | 控制母板 | / | / |
四、Remote Controller Unit,遥控器单元 | ||||
1 | LVPS CCA | 低电压电源板 | LVPS | 012222-0001 |
2 | BCPS CCA | 电池充电电源板 | BCPS | 030798-1001 |
3 | AC Power Monitor CCA | 交流电源监控板 | ACM | 012186-0001 |
4 | Control Panel | 电源开关控制板 | / | 030813-0001 |
五、Power Supply Unit,电源单元 | ||||
1 | Remote Control Unit,RCSU2238 | 远程监控单元(遥控器) | RCSU | 472238-0302 |
2 | Tower Monitor and Display Unit,RCU2138,RCU2238 | 塔台监控重显单元 | RCU | 002238-0700 |
六、Antenna Unit,天线单元 | ||||
1 | Commutator CCA | 换向板 | / | 012104-0001 |
2 | Commutator Control CCA | 边带天线切换控制板 | / | 012257-1001 |
3 | Divider,Power-RF | 边带天线切换单元 | / | 950310-0001 |
4 | Carry Antenna | 载波天线 | CSB-Ant | 030854-0001 |
5 | Sideband Antenna | 边带天线 | SB-Ant | 030855-0001 |
6 | Near Field Monitor Antenna | 近场监控天线 | / | 030443-0002 |
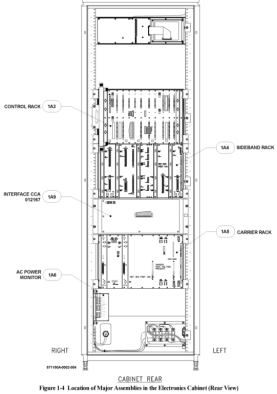
六、Cabinet Components distribution Diagram
DVOR1150A Front View | DVOR1150A Rear View |
| ![]() |