1118A & 1119A Distance Measuring Equipment (DME)
一、Business
“Bright Aviation” supplies complete sets of equipment, including spare parts supply, installation and commissioning, flight check, panel repair, factory training, after-sales service, technical consultation, spare parts support, on-site fault repair, periodic inspection and other businesses.
二、Performance
“Bright Aviation” has completed DVOR1150A, DME1118A, DME1119A equipment fault repair, periodic patrol inspection, system optimization, installation and commissioning, flight check, on-site training and other businesses in more than 10 airports in China, including Tumushuke Airport, Cangyuan Airport, Lancang Airport, Tongshan Navigation Station, etc.
三、Case
In August 2019, “Bright Aviation” installed and commissioned DVOR1150A,DME1119A equipment at Tongshan Navigation Station, Jiangsu Province, China, DVOR antenna reflection grid, as shown in the figure.

四、Simulator platform
1.“Bright Aviation” has established a complete set of DME1118A equipment simulator platform to undertake simulator modification, plate on-board testing, plate repair, practical training, spare parts support and technical support.
2. DME1118A simulator platform,as shown in the figure.

五、、Board List
序号 | 板件英文名称 | 板件中文名称 | 简 称 | 序号(PN) |
一、Transmitter Unit,发射机单元 | ||||
1 | Low Power Amplifier Assy | 低功率放大板(100W) | LPA | 030045-0001 |
2 | High Power Amplifier Assy | 高功率放大板(1000W) | HPA | 030043-0001 |
3 | Low Noise Amplifier | 低噪声功放板 | LNA | 012333-0001 |
4 | Receiver/Transmitter Controller Assy | 接收和发射控制板 | TRC | 030805-0001 |
5 | RF Switching Relay | 射频切换继电器 | RSR | / |
二、Monitor Unit,监控器单元 | ||||
1 | Monitor Interrogator Assy | 监控询问板 | MIA | 030806-0001 |
三、Controller Unit,控制单元 | ||||
1 | Local Control Unit Assy | 本地控制板 | LCU | 030801-0001 |
2 | RMS Processor CCA | 远程维护板 | RMS | 012172-1001 |
3 | RMS Facilities CCA | 辅助功能板 | FAC | 012171-0001 |
4 | Interface CCA | 接口板 | INT | 012167-0001 |
5 | Fan Control CCA | 风扇控制器 | FCC | 012187-0001 |
6 | Fan Circulating CCA | 风扇 | FAC | 242007-0000 |
四、Remote Controller Unit,遥控器单元 | ||||
1 | Remote Control Unit,RCSU2238 | 远程监控单元 (遥控器) | RCSU2238 | 472238-0302 |
2 | Tower Monitor and Display Unit,RCU2138,RCU2238 | 塔台监控重显单元 | RCU2138 RCU2238 | 002238-0700 |
五、Power Supply Unit,电源单元 | ||||
1 | AC-DC Power Supply CCA | 交流直流电源模块 | PSA | 951033-0000 |
2 | Battery Charging Power Supply CCA | 电池充电电源板 | BCPS | 012170-1001 |
3 | AC Monitor CCA | 交流监控板 | ACM | 012186-0001 |
4 | Status Display Panel | 电源状态显示板 | SPC | 012206-0001 |
六、Antenna Unit,天线单元 | ||||
1 | DME Antenna | DME天线 | DME-ANT | 030854-0001 |
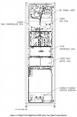
六、Cabinet Components distribution Diagram
DME1119A Front View | DME1119A Rear View |
|
|