415 & 435 Distance Measuring Equipment (DME)
一、Business
“Bright Aviation” supplies complete sets of equipment, including spare parts supply, installation and commissioning, flight check, panel repair, factory training, after-sales service, technical consultation, spare parts support, on-site fault repair, periodic inspection and other businesses.
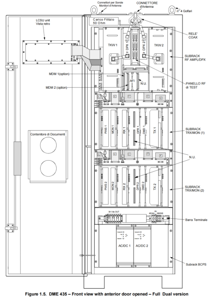
DME435 cabinet,as shown below.
二、Performance
“Bright Aviation” has completed the installation and commissioning of DVOR432, DME415, DME435 equipment, flight check, on-site training, fault repair, periodic inspection, system optimization and other businesses at more than 30 airports in China, including Yutian airport, Karamay airport, Qitai airport, Yan'an airport, Sansha airport, Barkol airport, etc.
三、Case
In September 2020, “Bright Aviation” completed the installation and commissioning of DVOR432 and DME435 equipment at Yutian Airport, Xinjiang Province, China, as shown below.
DVOR432 Antenna System | DVOR432 Station |
|
|
四、Simulator platform
1.“Bright Aviation” has established a complete set of DME415/DME435 equipment simulator platform to undertake simulator modification, plate on-board testing, plate repair, practical training, spare parts support and technical support.
2. Rebuilt DME415,DME435 simulator platform,as shown right.

五、Board List
No. | Board English Name | Board Chinese Name | Abbreviation | Serial Number |
一、Transmitter Unit,发射机单元 | ||||
1 | Digital Processor Unit DPR | 数字处理板 | DPR | 483700014A |
2 | Digital Modulator Unit DMD | 数字调制板 | DMD | 483700015B |
3 | 100W Transmitter Unit TX | DME415功放板 | TX100 | 483700017D |
4 | 100W Transmitter Unit TX | DME435功放板 | TX100 | 474910016U |
5 | 1kW Transmitter Unit(435 only ) | 1AKW功放板 | 1AKW | 474910019F |
6 | Receiving And Processing Modulation Board | 接收处理调制板 | RPM | 62054043 |
7 | Duplexer Unit DPX | 双工器 | DPX | 474910014S |
8 | Coaxial Relay Unit | 继电器 | CRU | 62054420 |
9 | Receiver Unit RX | 接收板 | RX | 474910012Y |
10 | Associated Facility Interface AFI | 识别接口板 | AFI | 474930032Y |
11 | TAI Dummy | 负载接口板 | TAI | 474930112V |
二、Monitor Unit,监控器单元 | ||||
1 | Monitor Unit MON | 监控板 | MON | 474910013Z |
三、Controller Unit,控制单元 | ||||
1 | CPU Control & Status Unit CSB 188 | 本地控制板 | CSB | 411700126E |
2 | Status Indicator Board | 状态指示板 | INC | 474729907M |
四、Remote Controller Unit,遥控器单元 | ||||
1 | Remote Monitoring Unit,RCSI 447-8 | 8路远程监控单元 (遥控器) | RCSI 447-8 | 472238-0302 |
2 | Tower Repeater Unit,SI 447-8 | 8路塔台重显单元 | SI 447-8 | 002238-0700 |
3 | Local Control Status Unit, LCSU MP386 | 本地控制板 | LCSU | 488700001 |
4 | Indication/Commands-8 Module | 状态显示板 | INC | 474930065H |
5 | Power Module | 电源模块 | PK30 | 136-010992J |
6 | Party Line Modem LGM 1200 | 接口模块(Modem) | LGM 1200 | 488700013N |
7 | Party Line Modem LGM 28.8 | 接口模块(Modem) | LGM 28.8 | / |
五、Power Supply Unit,电源单元 | ||||
1 | AC/DC-Converter 700W Module | 交流直流电源稳压模块 | ACC-54 | 5834120102 |
2 | +5V+/-15V DC/DC Converter | 直流转直流稳压模块 | PWS | 62054392 |
3 | Battery Supervisor Module | 电池辅助模块 | BSM | 474910008M |
4 | Battery Control Management System | 电源控制管理系统 | BCPS | 598700009 |
六、Antenna Unit,天线单元 | ||||
1 | DME Antenna | DME天线 | DME-ANT | / |
六、Cabinet Components distribution Diagram
