1150A型多普勒甚高频全向信标(DVOR)
一、业务
“铭远航空”供应成套设备,包括备件供应,安装调试,飞行校验,板件修理,工厂培训,售后服务,技术咨询,备件支持,现场故障抢修和周期巡检等业务。
DVOR1150A天线系统,如下图。

二、业绩
“铭远航空”在中国图木舒克机场,沧源机场,澜沧机场,铜山导航台等10多个机场,完成了 DVOR1150A,DME1118A,DME1119A设备故障修理,周期巡检,系统优化,安装调试,飞行校验,现场培训等业务。
三、案例
2019年8月,“铭远航空”在中国江苏省铜山导航台,完成了DVOR1150A,DME1119A设备的安装调试,如下图。
四、模拟机平台
1、“铭远航空”已建立了成套DVOR1150A设备模拟机平台,承接模拟机改造,板件上机测试,板件修理,实操培训,备件支持和技术支持等。
2、DVOR1150A模拟机平台,如下图。

五、板件清单
序号 | 板件英文名称 | 板件中文名称 | 简 称 | 序号(PN) |
一、Transmitter Unit,发射机单元 | ||||
1 | Audio Generator CCA | 音频信号产生板 | AGU | 012254-1001 |
2 | Synthesizer Assembly | 射频合成板 | SYN | 030838-1001 |
3 | Sideband Amplifier ASSY | 边带功放板 | SPA | 030824-0002 |
4 | Carrier Amplifier ASSY | 载波功放板 | CPA | 030825-0003 |
5 | Test Generator CCA | 测试信号产生板 | TGA | 012223-1001 |
6 | Carrier Rack | 载波母板 | / | / |
7 | Sideband Rack | 边带母板 | / | / |
8 | Divider,Power-RF | 射频功率分配器 | / | 950310-0001 |
9 | Switch,RF-Xmsn Line | 射频切换继电器 | / | 950337-0000 |
二、Monitor Unit,监控器单元 | ||||
1 | Monitor CCA | 监控板 | MON | 012245-1001 |
2 | RF Monitor ASSY | 射频监控板 | RFM | 030829-0001 |
三、Controller Unit,控制单元 | ||||
1 | Local Control Unit | 本地控制板 | LCU | 030801-0002 |
2 | RMS CCA | 远程维护板 | RMS | 012172-1002 |
3 | Facilities CCA | 辅助功能板 | FAC | 012171-0002 |
4 | Interface CCA | 接口板 | INT | 012167-0001 |
5 | Control Rack | 控制母板 | / | / |
四、Remote Controller Unit,遥控器单元 | ||||
1 | LVPS CCA | 低电压电源板 | LVPS | 012222-0001 |
2 | BCPS CCA | 电池充电电源板 | BCPS | 030798-1001 |
3 | AC Power Monitor CCA | 交流电源监控板 | ACM | 012186-0001 |
4 | Control Panel | 电源开关控制板 | / | 030813-0001 |
五、Power Supply Unit,电源单元 | ||||
1 | Remote Control Unit,RCSU2238 | 远程监控单元(遥控器) | RCSU | 472238-0302 |
2 | Tower Monitor and Display Unit,RCU2138,RCU2238 | 塔台监控重显单元 | RCU | 002238-0700 |
六、Antenna Unit,天线单元 | ||||
1 | Commutator CCA | 换向板 | / | 012104-0001 |
2 | Commutator Control CCA | 边带天线切换控制板 | / | 012257-1001 |
3 | Divider,Power-RF | 边带天线切换单元 | / | 950310-0001 |
4 | Carry Antenna | 载波天线 | CSB-Ant | 030854-0001 |
5 | Sideband Antenna | 边带天线 | SB-Ant | 030855-0001 |
6 | Near Field Monitor Antenna | 近场监控天线 | / | 030443-0002 |
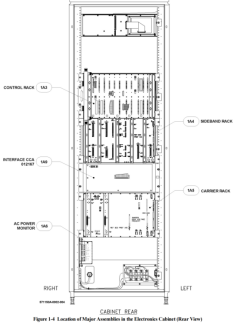
六、机柜板件分布图
DVOR1150A前视图 | DVOR1150A后视图 |
| ![]() |