1118A和1119A型测距仪(DME)
一、业务
“铭远航空”供应成套设备,包括备件供应,安装调试,飞行校验,板件修理,工厂培训,售后服务,技术咨询,备件支持,现场故障抢修和周期巡检等业务。
二、业绩
“铭远航空”在中国图木舒克机场,沧源机场,澜沧机场,铜山导航台等10多个机场,完成了 DVOR1150A,DME1118A,DME1119A设备故障修理,周期巡检,系统优化,安装调试,飞行校验,现场培训等业务。
三、案例
2019年8月,“铭远航空”在中国江苏省铜山导航台,完成了DVOR1150A,DME1119A设备的安装调试。
DVOR天线反射网,如下图。

四、模拟机平台
1、“铭远航空”已建立了成套DME1118A设备模拟机平台,承接模拟机改造,板件上机测试,板件修理,实操培训,备件支持和技术支持等。
2、DME1118A模拟机平台,如下图。

五、板件清单
序号 | 板件英文名称 | 板件中文名称 | 简 称 | 序号(PN) |
一、Transmitter Unit,发射机单元 | ||||
1 | Low Power Amplifier Assy | 低功率放大板(100W) | LPA | 030045-0001 |
2 | High Power Amplifier Assy | 高功率放大板(1000W) | HPA | 030043-0001 |
3 | Low Noise Amplifier | 低噪声功放板 | LNA | 012333-0001 |
4 | Receiver/Transmitter Controller Assy | 接收和发射控制板 | TRC | 030805-0001 |
5 | RF Switching Relay | 射频切换继电器 | RSR | / |
二、Monitor Unit,监控器单元 | ||||
1 | Monitor Interrogator Assy | 监控询问板 | MIA | 030806-0001 |
三、Controller Unit,控制单元 | ||||
1 | Local Control Unit Assy | 本地控制板 | LCU | 030801-0001 |
2 | RMS Processor CCA | 远程维护板 | RMS | 012172-1001 |
3 | RMS Facilities CCA | 辅助功能板 | FAC | 012171-0001 |
4 | Interface CCA | 接口板 | INT | 012167-0001 |
5 | Fan Control CCA | 风扇控制器 | FCC | 012187-0001 |
6 | Fan Circulating CCA | 风扇 | FAC | 242007-0000 |
四、Remote Controller Unit,遥控器单元 | ||||
1 | Remote Control Unit,RCSU2238 | 远程监控单元 (遥控器) | RCSU2238 | 472238-0302 |
2 | Tower Monitor and Display Unit,RCU2138,RCU2238 | 塔台监控重显单元 | RCU2138 RCU2238 | 002238-0700 |
五、Power Supply Unit,电源单元 | ||||
1 | AC-DC Power Supply CCA | 交流直流电源模块 | PSA | 951033-0000 |
2 | Battery Charging Power Supply(BCPS)CCA | 电池充电电源板 | BCPS | 012170-1001 |
3 | AC Monitor CCA | 交流监控板 | ACM | 012186-0001 |
4 | Status Display Panel | 电源状态显示板 | SPC | 012206-0001 |
六、Antenna Unit,天线单元 | ||||
1 | DME Antenna | DME天线 | DME-ANT | 030854-0001 |
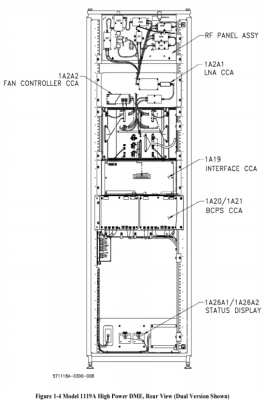
六、机柜板件分布图
DME1119A前视图 | DME1119A后视图 |
|
|
上一篇:LDB-103型测距仪(DME)